Open Menu
SHIFT
Verkauf & Installation
Verkauf & Installation
Logistik & Montage
Serviceanfrage
Lieferung
Finanzierungsmodelle
Bau
Facility Services
Räume
Räume
Arbeitsplatz
Kreativraum
Austausch & Treffpunkt
Konferenzraum
Workcafé
Rückzug
Versammlung
Referenzen
BOSblick
Unternehmen
Unternehmen
Philosophie
Philosophie
Vision / Mission
Werte
Positionierung
Nachhaltigkeit
Ansprechpartner
Karriere
Tel
SHIFT
Verkauf & Installation
Logistik & Montage
Serviceanfrage
Lieferung
Finanzierungsmodelle
Bau
Facility Services
Räume
Arbeitsplatz
Kreativraum
Austausch & Treffpunkt
Konferenzraum
Workcafé
Rückzug
Versammlung
Referenzen
Blog
Unternehmen
Philosophie
Vision / Mission
Werte
Positionierung
Nachhaltigkeit
Ansprechpartner
Karriere
Sie sind hier:
BOS
Referenzen
Kienbaum
Kienbaum Consultants International GmbH
Köln
Hier haben wir verbaut:
Arbeiten
Kreativraum
Austausch
Meeting
Kommunikation
Treffpunkt
Rückzug
Versammlung
Informationen
Realisierungszeitraum:
4 Monate
Fläche:
4.000 m
2
Mitarbeiter Standort Köln:
250
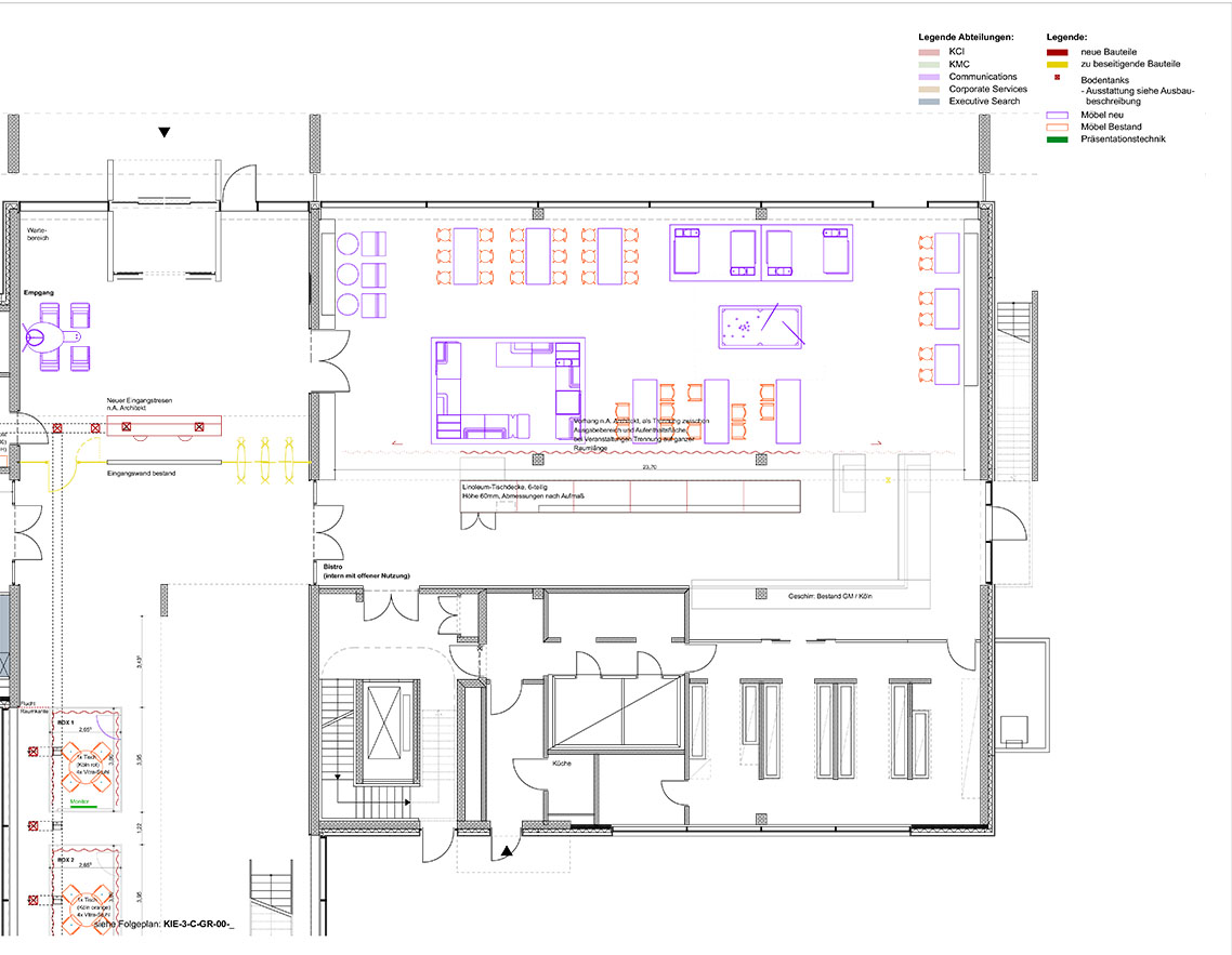
Raumplan anzeigen
Lieferung:
Magistrale
Mittelzonen
Open Space Büros
Lounge-Bereiche
Meeting-Räume
Kasino
Sind Sie an einer Zusammenarbeit interessiert?
Dann nehmen Sie Kontakt mit uns auf!
BOS
Köln
Holzmarkt 2a
50676 Köln
+49 221 801623-0
info(at)bos-buero.de
BOS
Logistik
Carl-Zeiss-Straße 5
51674 Wiehl
+49 2261 8102-0
logistik(at)bos-buero.de
Nehmen Sie Kontakt auf
Top
Ansprechpartner
Kontakt
Newsletter
Close
Kontakt
Wie können wir Ihnen weiter helfen?
Kontakt Popup
Top
Middle
Low
Top
Marke
Produkt
Anrede
*
Bitte auswählen
Herr
Frau
Vorname
*
Nachname
*
>
Middle
Firma
*
PLZ
*
Telefon
Rückruf erwünscht
E-Mail
*
>
<
Low
Ihre Nachricht
*
Datenschutz
*
Ich habe die Datenschutzerklärung zur Kenntnis genommen.
<
Diese Feld nicht ausfüllen!
Close
Newsletter
Anrede
Frau
Herr
Vorname
Nachname
E-Mail
Datenschutz*
Ich habe die Datenschutzerklärung zur Kenntnis genommen
Datenschutzerklärung ansehen
Anmelden
Close
Checkliste downloaden
Anrede*
Frau
Herr
Vorname*
Nachname*
Firma*
E-Mail*
Download